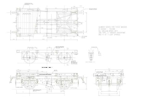
Wagons: BR Lowfit Drawing to Diagram 1-001
Doug Hewson Drawing showing BR Lowfit to Diagram 1/001.
This drawing features in Doug Hewson's Constructing Wagons book:
Drawing number 17
Size of drawing is approx 129cm x 84cm
Doug Hewson Drawing showing BR Lowfit to Diagram 1/001.
This drawing features in Doug Hewson's Constructing Wagons book:
Drawing number 17
Size of drawing is approx 129cm x 84cm