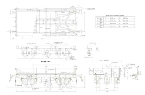
Wagons: BR Medfit Drawing to Diagram 1/019
Doug Hewson Drawing showing BR Medfit to Diagram 1/019.
This drawing features in Doug Hewson's Constructing Wagons Book:-
Drawing number 19
Size of drawing is approx 129cm x 84cm
Doug Hewson Drawing showing BR Medfit to Diagram 1/019.
This drawing features in Doug Hewson's Constructing Wagons Book:-
Drawing number 19
Size of drawing is approx 129cm x 84cm