Wagons: GWR Brake Van Drawing
Doug Hewson Drawing showing GWR Brake Van.
This drawing features in Doug Hewson's Constructing Wagons book:-
Drawing number 21a
Size of drawing is approx 129cm x 84cm
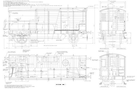
Doug Hewson Drawing showing GWR Brake Van.
This drawing features in Doug Hewson's Constructing Wagons book:-
Drawing number 21a
Size of drawing is approx 129cm x 84cm