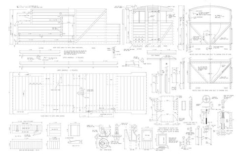
Wagons: LMS Standard Brake Van Drawing
Doug Hewson Drawing showing LMS Standard Brake Van.
This drawing features in Doug Hewson's Constructing Wagons book:-
Drawing number 22b
Size of drawing is approx 129cm x 84cm
Doug Hewson Drawing showing LMS Standard Brake Van.
This drawing features in Doug Hewson's Constructing Wagons book:-
Drawing number 22b
Size of drawing is approx 129cm x 84cm